5 unique but practical HDB layouts and where to find them
Asia One·2024-09-01 23:00
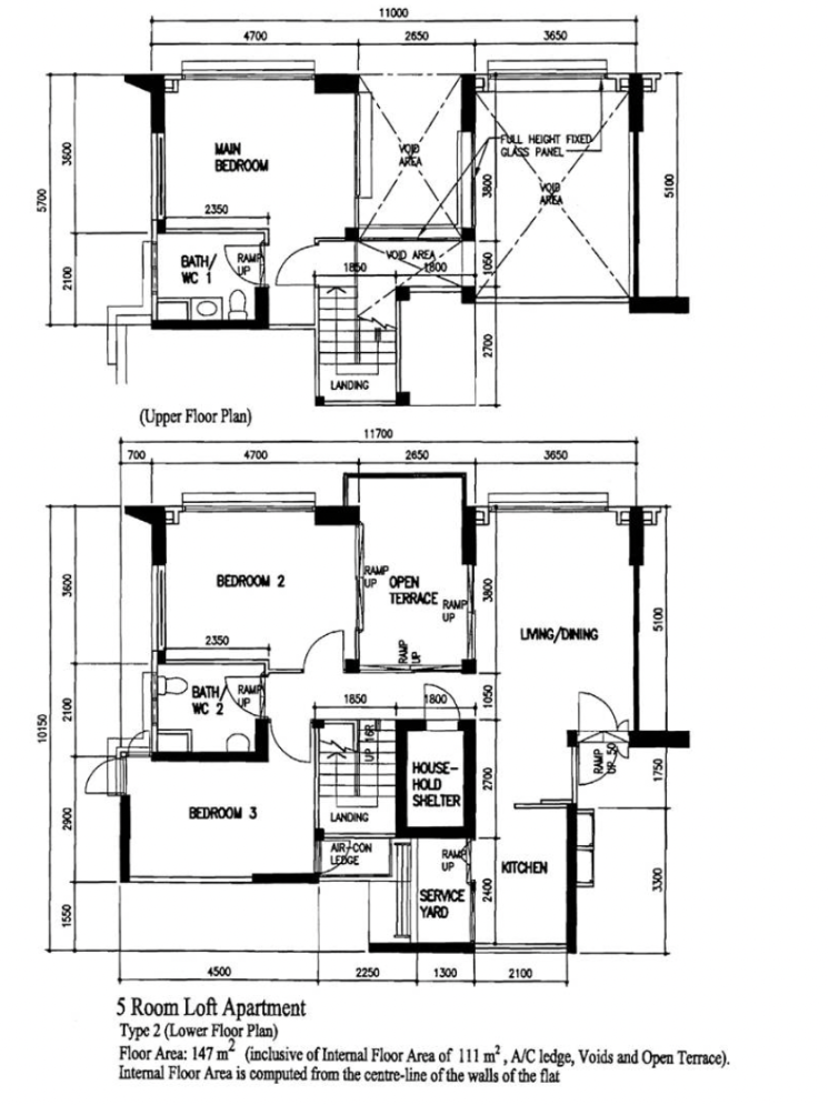
You may think all HDB flats are broadly similar, and they kind of are from the outside (although that's not true of HDB's older, cooler, experimental phase).
What affects us isn't the exterior of our block though — it's literally what's inside that counts when it comes to a residential property.
……Home
One-stop lifestyle app dedicated to making life in Singapore a breeze!
Comments
Leave a comment in Nestia App