5 unusual HDB layouts from the past that are hard to find today
Asia One·2024-08-25 01:02
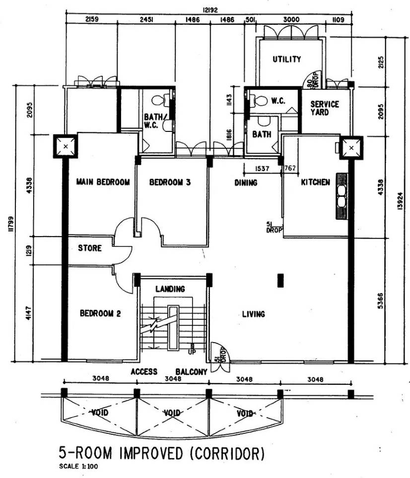
HDB flats have been around since the 1960s, and we've seen many changes besides flat size. Before we had alternatives like DBSS flats, HDB undertook many experimental approaches — some of which laid the groundwork for today's flats, and some were left behind for cost/practicality reasons.
……Home
One-stop lifestyle app dedicated to making life in Singapore a breeze!
Comments
Leave a comment in Nestia App